Leistungen für den Hochbau

Der Service in diesem Bereich umfasst das Planen, Konstruieren und Erstellen:

  • von Planunterlagen zur Baueingabe nach Entwurfsskizzen
  • von Ausführungsunterlagen für den Rohbau und Ausführungszeichnungen für den Ausbau.

Vom Entwurf bis zum Bauantrag

Ihre verschiedenen Ideen für Projekte aller Art werden schnell und präzise umgesetzt. Während der gesamten Bauzeit werden die Projekte nach Ihren Vorgaben zeichnerisch begleitet.

Auch Teilleistungen sind möglich.

Wenn Sie es wünschen kann eine Unterstützung Vorort in Ihrem Büro geleistet werden.

Ich biete Ihnen professionelle und kompetente Dienstleistung, Full- Service für alle Architektur- und Bauplanungsbereiche.

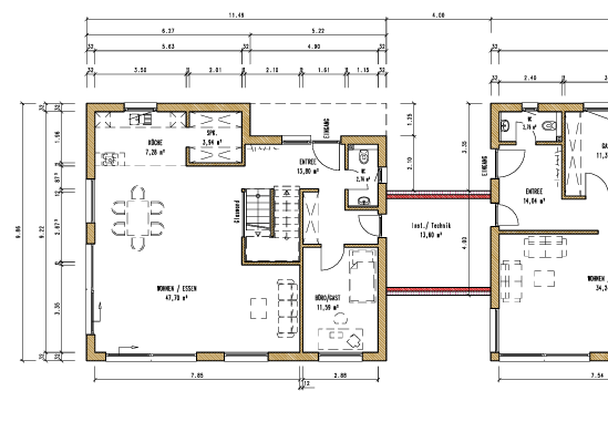
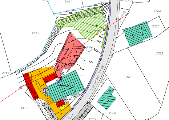
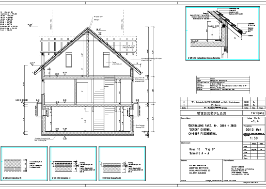
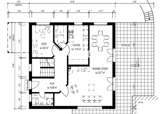
Beispiele